نظرة عامة
رقم ترخيص : 0000000000
نوع العقار
شقة
3
غرفة نوم
3
حمام
1
موقف سيارات
116
المساحة
حالة العقار
قيد الإنشاء
تاريخ الاستلام
2027/04/20
تحميل البروفايلرقم
الترخيص :0000000000
وصف المنتج
شقق للبيع في حي النزهة – جدة
مشروع فالي 4 – وحدات سكنية تحت الإنشاء، يقدم خيارات متنوعة بتصاميم عملية تناسب احتياجات السكن المختلفة.
مميزات المشروع:
مصعدين فل أوتوماتيك
دخول ذكي
كاميرات مراقبة
مداخل مكيفة
أنواع الوحدات:
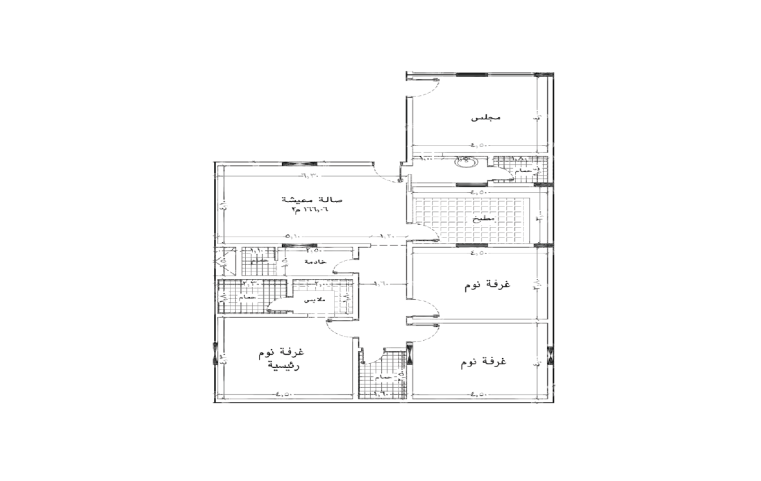
🔳 شقة أمامية:
4 غرف
صالة
3 دورات مياه
مدخلين
مطبخ
خزان مستقل
غرفة خادمة
موقف خاص
غرفة حارس
💰 السعر: 520,000 ريال
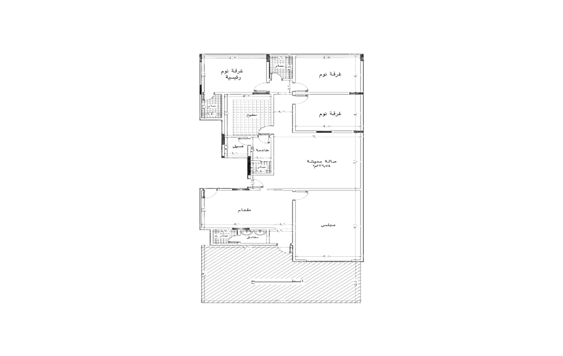
🔳 شقة خلفية:
3 غرف
صالة
3 دورات مياه
مدخلين
مطبخ
خزان مستقل
موقف خاص
مستودع
💰 السعر: 380,000 ريال
🔳 ملحق:
5 غرف
صالة
3 دورات مياه
مدخلين
مطبخ
خزان مستقل
غرفة خادمة
موقف خاص
غرفة حارس
💰 السعر: 720,000 ريال
ضمانات المشروع:
20 سنة على الهيكل الإنشائي
25 سنة على الأفياش والمفاتيح
5 سنوات على السباكة والأدوات الصحية
تأمين ضد العيوب الخفية (التعاونية)
سنة اتحاد ملاك مجانًا
مشروع فالي 4 – وحدات سكنية تحت الإنشاء، يقدم خيارات متنوعة بتصاميم عملية تناسب احتياجات السكن المختلفة.
مميزات المشروع:
مصعدين فل أوتوماتيك
دخول ذكي
كاميرات مراقبة
مداخل مكيفة
أنواع الوحدات:
🔳 شقة أمامية:
4 غرف
صالة
3 دورات مياه
مدخلين
مطبخ
خزان مستقل
غرفة خادمة
موقف خاص
غرفة حارس
💰 السعر: 520,000 ريال
🔳 شقة خلفية:
3 غرف
صالة
3 دورات مياه
مدخلين
مطبخ
خزان مستقل
موقف خاص
مستودع
💰 السعر: 380,000 ريال
🔳 ملحق:
5 غرف
صالة
3 دورات مياه
مدخلين
مطبخ
خزان مستقل
غرفة خادمة
موقف خاص
غرفة حارس
💰 السعر: 720,000 ريال
ضمانات المشروع:
20 سنة على الهيكل الإنشائي
25 سنة على الأفياش والمفاتيح
5 سنوات على السباكة والأدوات الصحية
تأمين ضد العيوب الخفية (التعاونية)
سنة اتحاد ملاك مجانًا
سمات الوحدة
داخلية
دخول ذكي
خزانات مستقلة
مدخلين
غرفة خادمة
خارجية
مصاعد
الموقع
كاميرات مراقبة


