نظرة عامة
رقم ترخيص : 0000000000
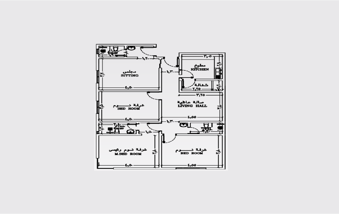
نوع العقار
شقة
3
غرفة نوم
3
حمام
1
موقف سيارات
105
المساحة
حالة العقار
قيد الإنشاء
تاريخ الاستلام
2027/04/20
تحميل البروفايلرقم
الترخيص :0000000000
وصف المنتج
شقق للبيع في حي الورود – جدة
تقدم شركة أحمد آل مبارك مشروع فيوتشر 5، وهو مشروع سكني تحت الإنشاء يتميز بتصاميم عصرية ومساحات متنوعة في موقع حيوي قريب من الخدمات.
أنواع الوحدات:
شقة 4 غرف أمامية (على شارع) بمساحة 136 م² — السعر 560,000 ريال
شقة 3 غرف أمامية مطلة على حديقة بمساحة 105 م² — السعر 445,000 ريال
ملحق 5 غرف أمامي بمساحة 246 م² — السعر 850,000 ريال
مميزات المشروع:
تصميم مودرن وتشطيبات فاخرة
سمارت هوم
كاميرات مراقبة
مدخل بطابع فندقي
شبابيك واسعة بإطلالات
أسقف مرتفعة
مصعدين فل أوتوماتيك
موقف خاص لكل شقة
عداد كهرباء مستقل
خزان مياه علوي وسفلي مستقل
عزل مائي
غاز مركزي
تأسيس مكيفات اسبليت
مميزات الموقع:
مقابل مستشفى سليمان الحبيب
مقابل الأندلس مول
ملاصق لحديقة عامة
بجوار مسجد النخيل
نافذ على شارع الملك عبدالله
قريب من طريق الأمير ماجد
بالقرب من المحطة
10 دقائق إلى جامعة الملك عبدالعزيز
18 دقيقة إلى مطار الملك عبد العزيز الدولي
15 دقيقة إلى كورنيش جدة
13 دقيقة إلى محطة القطار
9 دقائق إلى مستشفى شرق جدة
بالقرب من حي بني مالك
بالقرب من المساجد والحدائق
شارع نشط ومطلوب
الضمانات:
25 سنة على القواطع والأفياش
25 سنة على الهيكل الإنشائي
5 سنوات على السباكة والكهرباء
سنة اتحاد ملاك
تقدم شركة أحمد آل مبارك مشروع فيوتشر 5، وهو مشروع سكني تحت الإنشاء يتميز بتصاميم عصرية ومساحات متنوعة في موقع حيوي قريب من الخدمات.
أنواع الوحدات:
شقة 4 غرف أمامية (على شارع) بمساحة 136 م² — السعر 560,000 ريال
شقة 3 غرف أمامية مطلة على حديقة بمساحة 105 م² — السعر 445,000 ريال
ملحق 5 غرف أمامي بمساحة 246 م² — السعر 850,000 ريال
مميزات المشروع:
تصميم مودرن وتشطيبات فاخرة
سمارت هوم
كاميرات مراقبة
مدخل بطابع فندقي
شبابيك واسعة بإطلالات
أسقف مرتفعة
مصعدين فل أوتوماتيك
موقف خاص لكل شقة
عداد كهرباء مستقل
خزان مياه علوي وسفلي مستقل
عزل مائي
غاز مركزي
تأسيس مكيفات اسبليت
مميزات الموقع:
مقابل مستشفى سليمان الحبيب
مقابل الأندلس مول
ملاصق لحديقة عامة
بجوار مسجد النخيل
نافذ على شارع الملك عبدالله
قريب من طريق الأمير ماجد
بالقرب من المحطة
10 دقائق إلى جامعة الملك عبدالعزيز
18 دقيقة إلى مطار الملك عبد العزيز الدولي
15 دقيقة إلى كورنيش جدة
13 دقيقة إلى محطة القطار
9 دقائق إلى مستشفى شرق جدة
بالقرب من حي بني مالك
بالقرب من المساجد والحدائق
شارع نشط ومطلوب
الضمانات:
25 سنة على القواطع والأفياش
25 سنة على الهيكل الإنشائي
5 سنوات على السباكة والكهرباء
سنة اتحاد ملاك
سمات الوحدة
داخلية
دخول ذكي
شبابيك واسعة
خزانات مستقلة
غاز مركزي
اسقف عالية
عزل مائي
تكيف اسبليت
خارجية
مصاعد
الموقع
كاميرات مراقبة
يالقرب من مسجد وحديقة
بالقرب من المول


