نظرة عامة
رقم ترخيص : 7200446183
نوع العقار
شقة
2
غرفة نوم
2
حمام
حالة العقار
قيد الإنشاء
1
موقف سيارات
89
المساحة
تحميل البروفايلرقم الترخيص :7200446183
وصف المنتج
يُعد مشروع وريف أحد أبرز مشاريع شركة صاد العقارية في مدينة جدة، حيث يجسد مفهوم السكن العصري الفاخر في بيئة هادئة ومتوازنة داخل حي النعيم الراقي. يتميز المشروع بتصاميم معمارية حديثة تعكس ذوقًا هندسيًا رفيعًا يجمع بين الجمال والوظيفية، مع تشطيبات عالية الجودة واستخدام مواد بناء فاخرة تضمن المتانة والأناقة.
يضم المشروع شققًا سكنية فاخرة بتنوع يلبي احتياجات مختلف الأسر، حيث تتوفر خيارات من غرفتين وثلاث وأربع غرف بمساحات تبدأ من 89 مترًا مربعًا، مع توزيع ذكي للمساحات يحقق الراحة والخصوصية.
التصميم المعماري في مشروع وريف
يتميّز وريف بتصاميم معمارية عصرية تعكس ذوقًا هندسيًا رفيعًا يجمع بين الجمال والوظيفية.
الواجهات الخارجية تتميز بأناقة الألوان والتفاصيل الحديثة، بينما يبرز التصميم الداخلي بتوزيع ذكي للمساحات والإضاءة الطبيعية التي تضفي طابعًا دافئًا على كل وحدة.
يضم المشروع شققًا سكنية فاخرة بتنوع يلبي احتياجات مختلف الأسر، حيث تتوفر خيارات من غرفتين وثلاث وأربع غرف بمساحات تبدأ من 89 مترًا مربعًا، مع توزيع ذكي للمساحات يحقق الراحة والخصوصية.
التصميم المعماري في مشروع وريف
يتميّز وريف بتصاميم معمارية عصرية تعكس ذوقًا هندسيًا رفيعًا يجمع بين الجمال والوظيفية.
الواجهات الخارجية تتميز بأناقة الألوان والتفاصيل الحديثة، بينما يبرز التصميم الداخلي بتوزيع ذكي للمساحات والإضاءة الطبيعية التي تضفي طابعًا دافئًا على كل وحدة.
النماذج
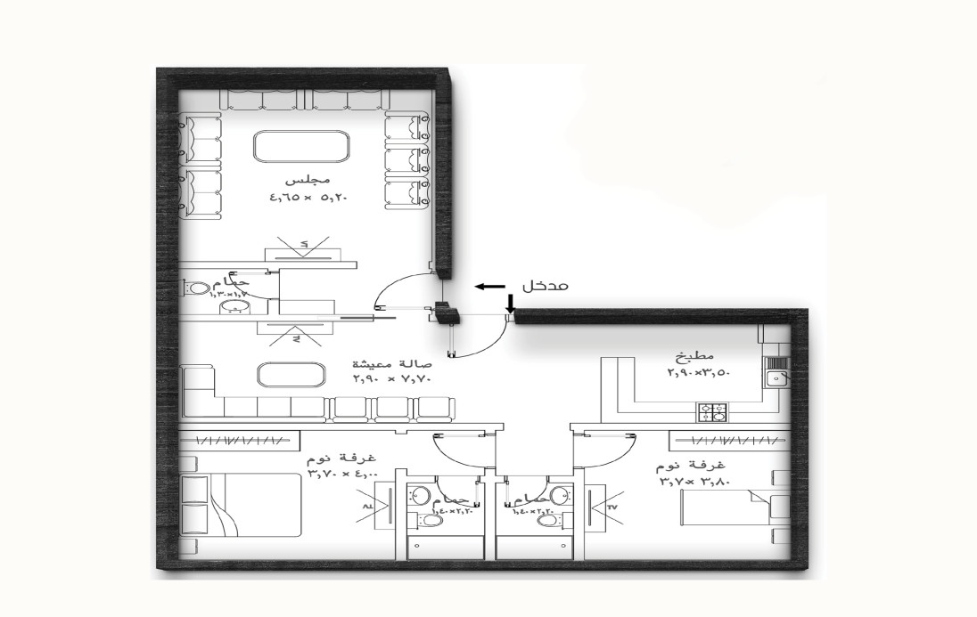
المساحة :
89 م2
غرفة نوم :
2
حمام :
2
السعر :

المساحة :
89 م2
غرفة نوم :
2
حمام :
2
السعر :

المساحة :
109 م2
غرفة نوم :
3
حمام :
3
السعر :

المساحة :
109 م2
غرفة نوم :
3
حمام :
3
السعر :

المساحة :
117 م2
غرفة نوم :
3
حمام :
3
السعر :

المساحة :
163 م2
غرفة نوم :
4
حمام :
4
السعر :

سمات الوحدة
داخلية
دخول ذكي
شبابيك واسعة
خزانات مستقلة
غاز مركزي
تكيف اسبليت
خارجية
مصاعد
الموقع
كاميرات مراقبة
خدمات
مكتمل الخدمات



