نظرة عامة
رقم ترخيص : 0000000000
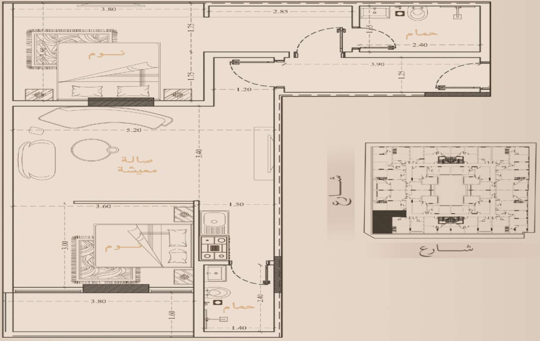
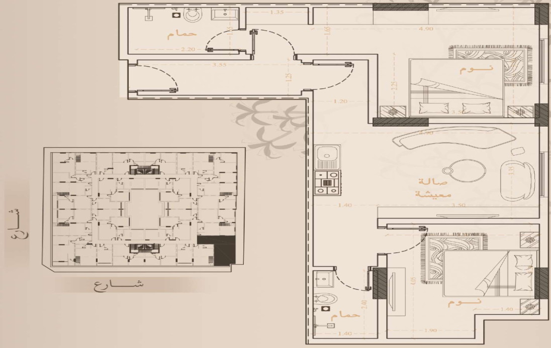
نوع العقار
شقة
2
غرفة نوم
2
حمام
1
موقف سيارات
94
المساحة
حالة العقار
قيد الإنشاء
تاريخ الاستلام
2027/04/01
تحميل البروفايلرقم
الترخيص :0000000000
وصف المنتج
مشروع لوفتيك – تجربة سكنية فريدة بتصميم عصري مستوحى من الطابع الأوروبي، حيث تلتقي الفخامة بالراحة في أحد أرقى أحياء مدينة جدة.
يقدم المشروع مفهوم اللوفت بتصميم مبتكر يجمع بين المساحات المفتوحة والخصوصية، ليمنحك أسلوب حياة مختلف يلبي تطلعات السكن والاستثمار.
خيارات متعددة تناسب جميع الاحتياجات:
يقدم مشروع لوفتيك مجموعة متنوعة من الوحدات السكنية، تشمل:
شقق سكنية بتصاميم عصرية
وحدات لوفت بطابع أوروبي مميز
وحدات روف بمساحات خاصة وإطلالات مميزة
اللوفت عبارة عن صالة رحبة بارتفاع مزدوج، يتوسطها درج أنيق يقود إلى غرفة نوم علوية، لتوفير خصوصية وأناقة بطابع أوروبي عصري.
مميزات المشروع:
تصميم لوفت عصري بارتفاع مزدوج
توزيع ذكي للمساحات
خصوصية عالية داخل الوحدة
تشطيبات حديثة بطابع أوروبي
مناسب للسكن والاستثمار
مميزات الموقع:
يقع في حي الروضة أحد أرقى أحياء جدة
قريب من الخدمات والمرافق الحيوية
موقع حيوي يسهل الوصول إلى أهم الطرق الرئيسية
الموقع: حي الروضة – جدة
استمتع بأسلوب حياة مختلف في مشروع يجمع بين التصميم الأوروبي العصري والموقع المميز في قلب جدة.
يقدم المشروع مفهوم اللوفت بتصميم مبتكر يجمع بين المساحات المفتوحة والخصوصية، ليمنحك أسلوب حياة مختلف يلبي تطلعات السكن والاستثمار.
خيارات متعددة تناسب جميع الاحتياجات:
يقدم مشروع لوفتيك مجموعة متنوعة من الوحدات السكنية، تشمل:
شقق سكنية بتصاميم عصرية
وحدات لوفت بطابع أوروبي مميز
وحدات روف بمساحات خاصة وإطلالات مميزة
اللوفت عبارة عن صالة رحبة بارتفاع مزدوج، يتوسطها درج أنيق يقود إلى غرفة نوم علوية، لتوفير خصوصية وأناقة بطابع أوروبي عصري.
مميزات المشروع:
تصميم لوفت عصري بارتفاع مزدوج
توزيع ذكي للمساحات
خصوصية عالية داخل الوحدة
تشطيبات حديثة بطابع أوروبي
مناسب للسكن والاستثمار
مميزات الموقع:
يقع في حي الروضة أحد أرقى أحياء جدة
قريب من الخدمات والمرافق الحيوية
موقع حيوي يسهل الوصول إلى أهم الطرق الرئيسية
الموقع: حي الروضة – جدة
استمتع بأسلوب حياة مختلف في مشروع يجمع بين التصميم الأوروبي العصري والموقع المميز في قلب جدة.


