نظرة عامة
رقم ترخيص : 7200692848
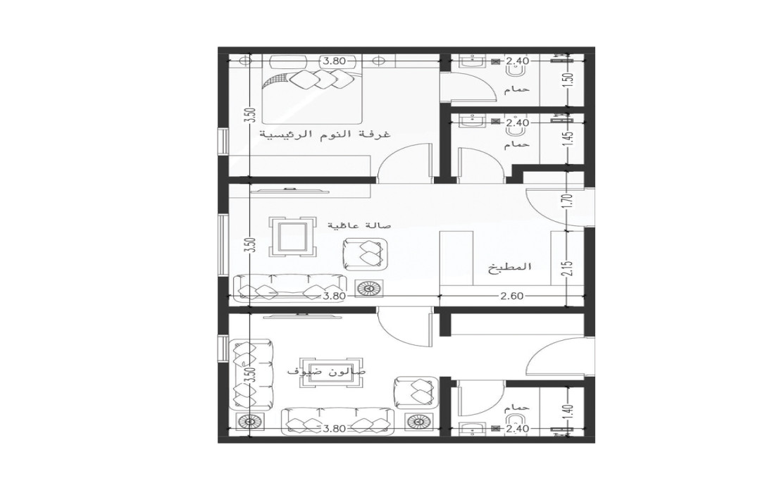
نوع العقار
شقة
2
غرفة نوم
2
حمام
حالة العقار
قيد الإنشاء
1
موقف سيارات
75
المساحة
تحميل البروفايلرقم الترخيص :7200692848
وصف المنتج
شقق للبيع غرفتين وثلاث غرف في مشروع لومنيس حي النهضة يُعد مشروع لومنيس (Luminous) في حي النهضة شمال جدة من أبرز المشاريع السكنية الحديثة التي تجمع بين التصميم العصري، والأسعار المنافسة، والموقع الاستراتيجي. هذا المشروع يُعتبر الخيار الأمثل للعائلات التي تبحث عن شقق فاخرة بأسعار مناسبة، وكذلك للمستثمرين الذين يرغبون في اقتناء وحدات ذات عوائد مستقبلية قوية. مع بدء الأسعار من 499,000 ريال فقط، يقدم مشروع لومنيس قيمة استثنائية مقارنة بالمشاريع الأخرى في جدة، خصوصاً في ظل ما يوفره من خدمات متكاملة ومرافق عصرية تلبي احتياجات الحياة اليومية
النماذج
المساحة :
75 م2
غرفة نوم :
2
حمام :
2
السعر :
المساحة :
86 م2
غرفة نوم :
2
حمام :
3
السعر :

المساحة :
76 م2
غرفة نوم :
2
حمام :
3
السعر :

المساحة :
109 م2
غرفة نوم :
3
حمام :
3
السعر :

المساحة :
109 م2
غرفة نوم :
3
حمام :
3
السعر :

المساحة :
109 م2
غرفة نوم :
3
حمام :
3
السعر :

سمات الوحدة
داخلية
دخول ذكي
شبابيك واسعة
عزل حراري
عزل مائي
مدخلين
تكيف اسبليت
خارجية
مصاعد
الموقع
كاميرات مراقبة
خدمات
مدارس
مكتمل الخدمات
مياة



